Программа для рисования конструкций из металла. Программы разработки чертежей кмд
Kovka3D — уникальная программа, предназначенная для проектирования любых металлоконструкций в одной плоскости или трехмерном формате. Создана она PulsarInvest и имеет широкие возможности.
Прекрасные модели, выполненные с помощью данного ПО, украсят любой дизайн-проект при строительстве. Кованые изделия придадут жилью элегантный облик и неповторимый стиль. Кованая продукция, кроме своих отличных функциональных и качественных характеристик, является сегодня еще и своеобразным элементом престижа. Она считается атрибутом быта респектабельных и успешных людей, которые ценят стиль и надежность, обладают изысканным вкусом. Благодаря сочетаемости с другими материалами, кованые изделия гармонично вписываются в любое пространство, идеально дополняют интерьер.
В приложении осуществляется проектирование конструкций исходя из производственных возможностей, а материалы для работы заносятся согласно ГОСТам. По окончанию проектирования изделия будет выведена автоматически практически вся информация, которая нужна для изготовления изделия, а также списания материалов, формирования стоимости заказа согласно затратным частям.
🧭 Компас 3D 💥 Металлоконструкции в стиле «ЛОФТ» 💥
Полезной особенностью программы является ее каталог материалов, который содержит такие материалы: полоса, круг, квадрат, труба прямоугольная, труба круглая, труба квадратная, швеллер облегчённый, швеллер без уклона, швеллер с уклоном, швеллер экономичный, швеллер специальный, уголок равнобокий, уголок неравнобокий. Кроме того, доступно сечение материалов любых пропорций и размеров.
Программа прекрасно рассчитывает стоимость и трудозатраты. Вы также сможете создавать тех. карты, коммерческие предложения на фото объекта заказчика. К достоинствам приложения стоит отнести наличие библиотеки готовых изделий, декоративных элементов, а также редактора простых декоративных элементов. Отличная возможность программы — возможность пересчета стоимости заказа в случае изменения курса валют или стоимости материалов в реестре заказов. Чтобы попробовать все эти функции в действии, вы можете Kovka3D скачать.
Интерфейс программы русскоязычный. Функционал приложения очень широкий, как и в другой популярной программе для 3D-визуализации . Теперь, если вам нужно выковать забор, решетку, ворота, балкон и т.п., все это сделать гораздо проще. Для этого стоит Kovka3D скачать бесплатно.
Программа, вне всяких сомнений, будет вам полезна, ведь хорошие и качественные 3D модели всегда в цене. Это объясняется широким и стремительным развитием этой индустрии в соответствии с современными требованиями и прогрессом. Создание реалистичных визуальных моделей всегда требует профессионализма, знаний, сноровки и опыта. С помощью данного приложения вы получите великолепную возможность создавать модели коварных изделий с высокой эффективностью. Любую философию будущего изделия из металла можно воплотить в 3D.
В частном доме, отеле, офисных зданиях, обязательно правильно организовать пространство. Вход и выход на территорию очень важен, поэтому программа для расчета ворот будет нужна тем, кто планирует построить детальную схему этого сооружения. Ворота могут быть разными, отличающимися по качеству, материалам, внешнему виду.
Урок 1. Искусство проектирования узлов стальных конструкций
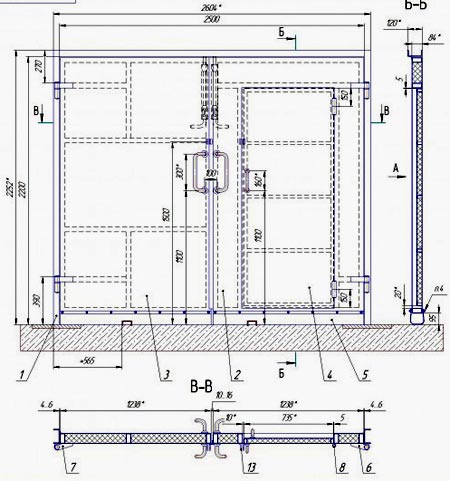
Чертеж и конструкция откатных ворот
Поэтому каждому, перед тем как сделать заявку на заказ, следует осуществить следующие действия:
- Обдумать ценовую политику, которая подойдет по всем параметрам;
- Решить, как ворота должны выглядеть;
- Определиться с компанией, в которой будет осуществлен заказ;
- Выбрать цветовые решения входных ставней;
- Продумать, подойдет ли конструкция для общей картины пространства.
Какими могут быть ворота
Ворота отличаются несколькими показателями:
- Материал, из которого они сделаны;
- Цена;
- Сложность конструкции;
- Крепежные элементы;
- Дизайн сооружения.
Все эти моменты очень важны в процессе составления схемы.

Схема с размерами распашных ворот с калиткой
А также ворота разделяются по следующим показателям:
- С ручным механизмом открытия или с автоматическим;
- С электронным замком или с механизированным;
- С ровными линиями или с ковкой ручной работы.
В каких программах можно осуществить расчеты
Программа для расчета ворот поможет:
- Просчитать необходимое количество материалов, необходимых для обустройства конструкции;
- Узнать сумму денежных средств на покупку сырья или готового сооружения;
- Понять, какой высоты, прочности, направленности должна быть готовая структура ворот.
Осуществить расчеты можно в следующих программах:
Kovka 3D
В этой программе можно сделать расчеты разных . Ворота также входят в их число. Введя требуемые параметры, можно посмотреть все необходимые детали, которые нужны для возведения ворот.

А также, можно понять, сколько денежных средств понадобится, чтобы осуществить миссию. Какие данные нужно вводить:
- Желаемую высоту конструкции;
- Ширину;
- Тип управления воротами;
- Материал для изготовления;
- Желаемая фурнитура;
- Дизайн металлоконструкции.
Создание на участке живой изгороди из жимолости
После введения показателей, система выдаст детальные расчеты стоимости, размера, дизайна конструкции.
Sopromat
Осуществляя проектирование ворот, программа поможет определить число необходимых опорных конструкций (балок) для максимальной устойчивости сооружения. Введя в программу нужные данные, можно получить детальную информацию о том, какой нужен материал опор, в каком количестве и какова ценовая политика.

Расчет ворот в программе Sopromat
Данные, которые потребуется ввести в систему:
- Высоту ворот для частного дома ;
- Ширину;
- Толщину металла, из которого будет производиться изделие.
Все эти показатели помогут четко рассчитать, какая балочная система необходима для удержания тяжелой конструкции. Помимо вышеуказанных, также есть различные калькуляторы расчетов, благодаря которым можно четко определить, во сколько обойдется возведение конструкции ворот.
Это не совсем программа для расчета ворот, это скорее средство для определения количества необходимых материалов.
В чем поможет программа по расчету ворот
Благодаря тому, что есть программа для расчета ворот, каждый владелец недвижимости или частного бизнеса сможет без труда осуществить миссию.

Это поможет:
- Сохранить денежные средства на найме специалистов в сфере расчетов;
- Определить точное количество необходимых для ворот материалов и элементов;
- Понять, сколько финансовых ресурсов пригодиться для осуществления задуманного;
- Подобрать идеальные по дизайну и характеристикам конструкции;
- Увидеть ворота до момента из установления;
- После расчетов сразу же осуществить заказ услуг и материалов на специализированных сайтах, которые предлагают программу для самостоятельного подбора вариантов.
1) Tekla Structures (Текла )
Четырехмерная программная система, используется в строительной отрасли для детализации стальных и железобетонных конструкций. Программное обеспечение позволяет пользователям создавать 3модели.
В Текле действует многопользовательский режим, очень полезная функция для работы в больших моделях. С помощью этой программы можно создавать собственные приложения.
Осуществляется импорт и экспорт в форматы: DWG, DXF, IFC, CIS/2, SDNF, DSTV, DGN и прочие.
2) Advance Steel
Программное обеспечение для 3D моделирования и конструирования стальных конструкций и автоматического создания рабочих чертежей. Может работать на своей собственной Платформе.
Приложение поддерживает все основные функции программы AutoCAD (точки прикрепления, захвата точек, копирование и др.). При работе на своей собственной CAD Платформе, приложение предоставляет те же возможности, что и AutoCAD. Для CAD Платформы Аdvance Steel служит графический движок объектно-ориентированной базы данных. Совместимость обеспечивается между разными версиями Advance Steel.
Осуществляется импорт и экспорт в следующие форматы файлов:
GTC, DWG, IFC. 2×3, CIS/2, SDNF, PSS; KISS (“Keep it Simple, Steel”), DSTV, DXF.
3) AutoCAD
AutoCAD — 2-х- и 3-х мерная программа для проектирования и черчения, созданная Autodesk. Программа AutoCAD широко используется в машиностроении, строительстве, архитектуре и других отраслях промышленности.
В AutoCAD чертежи КМД разрабатывают в 2D и 3D. Для 3-х мерного моделирования устанавливаются специализированные приложения: Structural Detailing, RСAD-Steel.
AutoCAD Structural Detailing — средство для проектирования и расчёта стальных и железобетонных конструкций, поддерживающее технологию информационного моделирования зданий. Базовыми объектами являются балки, колонны, пластины и арматурные стержни и др.
RСAD- Steel — приложение на базе AutoCAD, предназначенное для выполнения рабочих чертежей стадии КМ и КМД. RСAD-Сталь предлагает полный набор опций для пространственного моделирования стальных конструкций и автоматической генерации деталировочных чертежей и спецификаций. Процесс выполнение чертежей в программе полностью автоматизирован. Чертежи выполняются на базе той пространственной модели, которую инженер создает, используя специализированный пользовательский интерфейс и стандартные опции AutoCAD»a, например операции редактирования такие как копирование, перемещение и т.д.
4) Компас 3 D
Компас 3 — программа автоматизированного проектирования с возможностями оформления проектной и конструкторской документации согласно стандартам СПДС и ЕСКД.
В комплексе существует связь трёхмерной модели и чертежей со спецификациями, то есть при «надлежащем» проектировании спецификация может быть получена автоматически; кроме того, изменения в чертеже или модели будут передаваться в спецификацию, и наоборот.
У программы есть различные версии, например «КОМПАС-Строитель» предназначена для автоматизации проектно-конструкторских работ в строительной отрасли. Она позволяет создавать рабочую документацию согласно стандартам СПДС.
5) Bocad-3D
Bocad-3D — одна из первых 3D-CAD программ для проектирования металлоконструкций, которая развивается уже более 30 лет.
Данная система проектирования позволяет конструктору в кратчайшие сроки и с большой точностью выполнять очень сложные проекты зданий и сооружений.
После создания 3D-модели, простановка номеров позиций, создание чертежей и спецификаций происходит в автоматическом режиме, что уменьшает количество ошибок при получении конечного результата.
Большое количество интерфейсов позволяет передавать данные из программы в другие приложения (DXF-2D, DXF-3D, DWG, DBF, XML, PDMS, SDNF, SDS/2 и др.).
Интерфейс NC-DSTV предоставляет пользователям возможность получения файлов для станков ЧПУ.
6) BricsCAD
BricsCAD — коммерческая САПР, разрабатываемая бельгийской компанией Bricsys. Изначально система базировалась на платформе IntelliCAD; в феврале 2010 года заявлено о выходе из консорциума ITC. Это одна из немногочисленных САПР, имеющих поддержку Linux. В ней используется разработанная в рамках консорциума Open Design Alliance библиотека для работы с форматом DWG.
7) CAD-PLAN ATHENA 2006
Программа для проектирования металлических и фасадных конструкций ATHENA 2006. Наряду с многочисленными модификациями и добавлениями мы придаем большое значение:
Конфигуратор ATHENA для конструирования 3D-элементов, таких как зимние сады, светопрозрачные кровли или фасады — со свойствами материалов, правилами конструирования и требованиями производства.
Источник: indrikgrad.ru
Не теряя времени: как проектировать металлоконструкции качественно и быстро
Один из советских агитационных плакатов гласил: «Больше металла — сильнее Родина!» Но мы будем мыслить конкретнее. Сегодня металлоконструкции незаменимы практически в любой отрасли. Из профильного металлопроката изготавливают рамные конструкции, антенные мачты и вышки, опоры, ограждения, эстакады, площадки, фермы.
Так что, прямо скажем, больше металлоконструкций — сильнее промышленность, строительство, сельское хозяйство! И мы, как разработчики инженерного ПО, можем помочь конструкторам, которые занимаются созданием подобных изделий, упростить и ускорить процесс не только проектирования, но и подготовки производства металлоконструкций. Для этого им нужно лишь освоить новое приложение Оборудование: Металлоконструкции для КОМПАС3D.
Новым приложение называется не просто так. Это первая версия, которая позволяет быстро, удобно и интуитивно проектировать сложные рамные и ограждающие металлоконструкции.
Как быстро?
Очень быстро. Руководители часто сталкиваются с ситуацией, когда выпустить документацию или изготовить оборудование нужно было «вчера». Поворачивать время вспять приложение Оборудование: Металлоконструкции, конечно, не может, но оперативно справиться с задачей сегодня, сейчас, вполне способно.
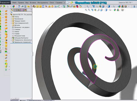
Высокая скорость построения изделия достигнута за счет изменения механизма создания профилей металлоконструкции. Теперь профили конструкции проектируются в виде тел модели. Благодаря этому и дерево построения стало более компактным и простым в восприятии. Объекты и операции в нем отображаются специальными значками (рис. 1).



При этом приложение избавляет конструктора от ряда рутинных задач. Например, теперь нет потребности в трудоемком процессе создания шаблонов профилей. Сортамент профиля может выбираться из нового «Каталога профилей», входящего в комплект поставки приложения, либо из справочника «Материалы и Сортаменты» (рис. 2).
Хотите еще быстрее? Пожалуйста! Скорость повышает реализованная в приложении интерактивность инструментов. Так, в команде Пластина перейти от редактирования параметров пластины к изменению ее положения можно с помощью специального переключателя, отображающегося рядом с фантомом пластины (рис. 3).
Насколько удобно?
Скорость — это еще не все. Для удобства построения и редактирования металлоконструкции разработчики добавили механизм Характерных точек, который позволяет задавать длину и угол поворота профиля. Кроме того, получил развитие механизм Позиционирующих точек — теперь эти точки можно использовать не только для ориентации профиля в пространстве модели, но и для привязки к ним других объектов приложения.
Очень просто теперь построить для труб Ребро жесткости. Для смены типа ребра можно кликнуть на специальный переключатель, расположенный непосредственно в рабочем окне модели рядом с фантомом ребра (рис. 4).

А можно всё и сразу?
Можно и не такое! В болтовых металлоконструкциях крепление частей металлоконструкции осуществляется с помощью болтов и гаек. Данный вид крепления очень популярен, ведь такую конструкцию легко разбирать, транспортировать и осуществлять сборку в другое время или в другом месте.
Функция Группа отверстий позволяет за одну операцию получить параметрическую группу отверстий для дальнейшего позиционирования в ней крепежных деталей. Важной особенностью команды является возможность «сверления» пакета деталей, то есть группа отверстий может быть выполнена как в одной, так и одновременно в нескольких лежащих друг на друге деталях (рис. 5).


Как правило, в металлоконструкциях присутствует много одинаковых элементов. Для таких случаев в командах построения предусмотрена возможность копирования свойств Кисточка. С ее помощью мы можем, например, назначить размеры и форму ребра жесткости по аналогии с другим таким же ребром.
Кроме того, специальная команда Копировать в точки позволяет скопировать одну либо несколько деталей в указанные конструктором позиции. Например, при создании балочной конструкции мы можем построить одну колонну, а все остальные просто копировать (рис. 6).
Но мало выпустить проектную документацию на металлоконструкции. Важно, чтобы в итоге конструкция собралась и не пришлось при монтаже ничего «дорабатывать напильником», подрезать, подваривать и т.д.
Металлоконструкция, спроектированная в приложении, может быть проверена на наличие пересечений.
Проектирование в 3D сразу выдает возможные нестыковки в конструкции. По сути, Оборудование: Металлоконструкции позволяет избежать дополнительных затрат на материал, инструмент, а главное — не потерять драгоценное время.
Чем докажете?
Докажем и покажем. Параллельно с разработкой нового приложения Оборудование: Металлоконструкции шло его функциональное тестирование. Все возможности приложения проверялись путем построения реальных пользовательских проектов. На рис. 7, 8, 9, 10 представлены примеры конструкций, выполненных с помощью обновленного приложения.
Убедились? Новое приложение Оборудование: Металлоконструкции к вашим услугам! Ну а если вопросы все еще остались, просим вас обращаться к специалистам АСКОН и компанийпартнеров любым удобным способом.
Источник: sapr.ru
Программы для эскизов кованых изделий. Какая лучше?
Ищу советов и рекомендаций по программам для создания эскизов кованых изделий и прочих металлоконструкций.
В какой программе работаете/работали Вы и какая Вам нравится больше? И чем?
Буду очень благодарна за каждый комментарий по теме))
shmit
модератор
В какой программе работаете
оптимальная.
Вложения

IronMen
Приветствую, всех, кто не прошел мимо!
Ищу советов и рекомендаций по программам для создания эскизов кованых изделий и прочих металлоконструкций.
В какой программе работаете/работали Вы и какая Вам нравится больше? И чем?
Буду очень благодарна за каждый комментарий по теме))
У меня доска и мел. Отличная программа.
DimaZheshart
Подмастерье
СкетчАп и Компас
legion-236
В этой области нет стандартов для программ. Более того, некоторые даже не знают что это такое и предполагают, что это мел и карандаш.
Сам пользовался всякими, в основном: 3dsmax, AutoСad, Corel, Adobe Illustrator. Но моя цель в получении вкусных картинок которые далее шли в конструкторский отдел, или в проектный институт. Поэтому выбор во многом зависит от возможности производства. Для гаражного производства программы и вовсе не нужны, там готовы клепать за копейки и лишние затраты там излишни)
Источник: kovka.guru